27 000 000 Р 333 500 $ или 287 000

Информация о коттедже

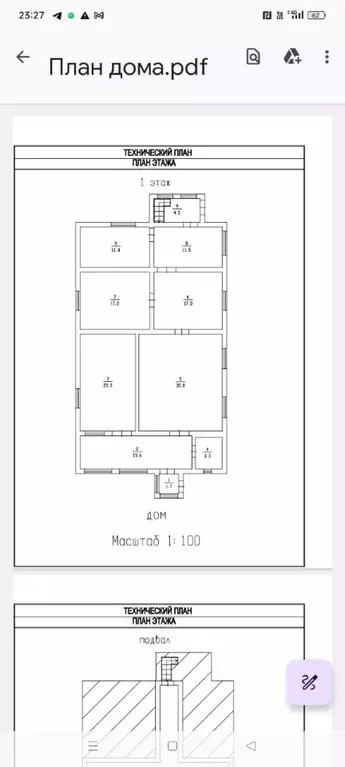
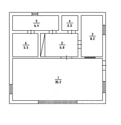
175 м2
Площадь
1
Этажность
12 cоток
Участок

Дополнительная информация

Дом продаётся вместе с участком
есть
Развернуть
Агент
+7 (987) 380-97-06
Начать чат с агентом

Дом в Саратовская область, пос. Новогусельский ул. Александровская, 22 ...

На земельном участке расположены: Одноэтажный жилой дом с высокими потолками 330 см , большими окнами, общей пл. 175 кв.м.Очень каллоритный банный комплекс , куда хочеться вернуться ещё и ещёаз, с просторной кухней столовой общей пл. 64 кв.м, в зимний периуд отапливается газовым котлом. Хозяйственные вспомогательные постройки.Ухоженный плодоносящий сад где растёт вишня , черешня, груша, яблони,очень крупная малина, клубника, сладкий виноград и.т.д.В шаговой доступности сетевые магазины, школа,детский сад,спортивная площадка, остановка общественного транспорта.По запросу предоставлю дополнительно фото.

Читать полностью

    Для того, чтобы купить 1-этажный коттедж по адресу: Новогусельский, ул. Александровская, 22, позвоните по телефону +7 (987) 380-97-06. Торопитесь! Объявление №50016407129 о продаже одноэтажного коттеджа опубликовано 19 октября 2025.

    Позвонить Написать
    27 000 000 Р333 500 $ или 287 000
    Агент
    +7 (987) 380-97-06
    Начать чат с агентом
    Похожие предложения
    Дом в Саратовская область, с. Боковка ул. Лесная (1300 м) - Фото 1
    Дом в Саратовская область, с. Боковка ул. Лесная (1300 м) - Фото 2
    4 этажа, общая площадь 1300м², участок 320 соток

    ОДНО ИЗ УНИКАЛЬНЕЙШИХ ПРЕДЛОЖЕНИЙ НА РЫНКЕ Г. САРАТОВА Предлагается к покупке УСАДЬБА : Земельный участок, здание, строения,3 пруда, русло реки, пляж и др. Благодаря своему расположению и прилегающей территории отлично подойдет под загородный клуб, пансионат,...
    • 4 эт.
    • 1 300 м²
    • 320 сот.
    27 000 000 Р
    Агент
    +7 (919) Показать номер
    Посмотреть контакты
    Дом в Саратовская область, Саратов ул. Имени Б.Ф. Андреева, 3 (321 м) - Фото 1
    Дом в Саратовская область, Саратов ул. Имени Б.Ф. Андреева, 3 (321 м) - Фото 2
    3 этажа, общая площадь 321м², участок 13 соток

    Арт.Продаётся прекрасный жилой дом с участком — отличная инвестиция или комфорт для большой семьи Адрес: город Саратов, улица имени Б. Ф. Андреева, дом 3, Волжский районОсновные характеристики:Назначение земли: земли населённых пунктов , жилой дом.Общая...
    • 3 эт.
    • 321 м²
    • 13 сот.
    28 000 000 Р
    Агент
    +7 (953) Показать номер
    Посмотреть контакты
    Коттедж в Саратовская область, Саратов проезд 5-й Волжский (300 м) - Фото 1
    Коттедж в Саратовская область, Саратов проезд 5-й Волжский (300 м) - Фото 2
    общая площадь 300м², участок 9 соток

    Предлагаем к вашему вниманиюЦЕНА СНИЖЕНА на время снижение курса доллара Проект выполнен в Восточном стиле, сделан с любовью и щепетильным отношением к деталям На фото представлен дизайн-проект, идёт в подарок Покупателю ...
    • 300 м²
    • 9 сот.
    27 900 000 Р
    Агент
    +7 (987) Показать номер
    Посмотреть контакты
    Дом в Саратовская область, Энгельс Короткая ул., 21 (185 м) - Фото 1
    Дом в Саратовская область, Энгельс Короткая ул., 21 (185 м) - Фото 2
    2 этажа, общая площадь 185м², участок 5 соток

    Продаже ДОМ В одном из лучших и самых востребованных районов города. Дом 2023 года постройки общей площадью 165,7 м2 без учета террасы, выложен из керамического кирпича, отделан облицовочным кирпичом, крыша мягкая кровля, установлен стеклопакет 70 профиля...
    • 2 эт.
    • 185 м²
    • 5 сот.
    26 500 000 Р
    Агент
    +7 (917) Показать номер
    Посмотреть контакты
    Коттедж в Саратовская область, Саратов проезд 4-й Береговой, 2 (345 м) - Фото 1
    Коттедж в Саратовская область, Саратов проезд 4-й Береговой, 2 (345 м) - Фото 2
    2 этажа, общая площадь 345м², участок 3 сотки

    Продаю коттедж 345 кв.м. в 5 мин от центра города В шаговой доступности Городской. парк им. Горького, новая набережная,бассейн Саратов, магазины, школы, детские сады.Планировка дома продумана и обеспечивает комфорт проживания.Гараж на 2 машины, из гаража...
    • 2 эт.
    • 345 м²
    • 3 сот.
    27 800 000 Р
    Агент
    +7 (917) Показать номер
    Посмотреть контакты

    Не нашли подходящего объявления?

    Оставьте заявку, и наши риэлторы подберут купить дом в районе Новогусельского

    (0)