285 000 Р 3 500 $ или 2 980

Информация о помещении и здании

3
Этаж
3
Этажность
Развернуть
Агент
Екатерина Тимофеева (РБС)
+7 (917) 210-74-31
Начать чат с агентом

Офис в Саратовская область, Саратов Московская ул., 84 (409 м)

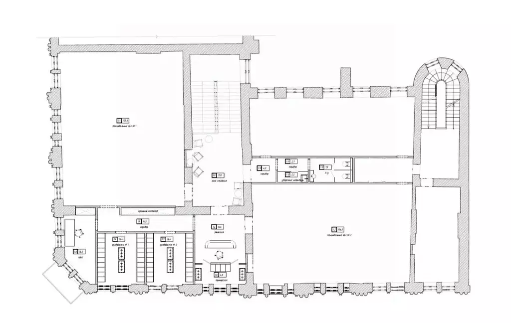
Арт.Фронт-офис для компании/коворкинг/апартаменты/спортивные и танцевальные студии.Расположение: Московская /Горького, вход с ул. Горького., 3ий этаж (ступени низкие)2 входа -- основной общий с Горького и эвакуационный во двор.Конструктив -- свободный, окна и естественное освещение по всему фасаду.Планировочное решение на данный момент : Лобби- зона и ресепшн,помещения 127,6 кв м и 106 кв м санузел (2 шт)3 комнаты по 15 м, одна из них с видовым балконом на городвысота потолка до балки 4,2 м.Состояние отделки:пол под чистовое покрытие, стены перегородки из гипсокартона под чистовую отделку , стены по периметру кирпичная кладка,электрика -- разводка внутри, розетки, счетчик,отопление - разводка внутри, радиаторы, счетчик. Соседи в здании -- кофейня, бистро и ресторан Москва . Окружение : правительство и министерства, театр , областная библиотека, банк, торговые объекты, центральная площадь города.Универсальность планировочного решения и престижное месторасположение в самом центре города в историческом здании сделает ваш бизнес здесь максимально привлекательным для сотрудников или клиентов.Возможен ремонт по потребности арендатора, условия и ставка аренды в этом случае рассчитывается индивидуально.

Читать полностью
    Позвонить Написать
    285 000 Р3 500 $ или 2 980
    Агент
    Екатерина Тимофеева (РБС)
    +7 (917) 210-74-31
    Начать чат с агентом
    Похожие предложения
    Офис в Саратовская область, Саратов Тверская ул., 24 (300 м) - Фото 1
    Офис в Саратовская область, Саратов Тверская ул., 24 (300 м) - Фото 2
    2-й этаж, всего 2 этажа

    Логистический центр:2-й этаж 300 м2 в здании в 3 этажа общей площадью около 908 м2;Наличие инженерных коммуникаций:- Электрическая мощность 150 кВт;- Вода и водоотведение; - Канализация центральная; - Газ;Подъездные пути с трех сторон.Екатерина Д.Добавьте...
    • 2/2 эт.
    300 000 Р
    Агент
    +7 (917) Показать номер
    Посмотреть контакты
    Офис в Саратовская область, Саратов Тверская ул., 24 (300 м) - Фото 1
    Офис в Саратовская область, Саратов Тверская ул., 24 (300 м) - Фото 2
    2-й этаж, всего 2 этажа

    Логистический центр:2-й этаж 300 м2 в здании в 3 этажа общей площадью около 908 м2;Наличие инженерных коммуникаций:- Электрическая мощность 150 кВт;- Вода и водоотведение; - Канализация центральная; - Газ;Подъездные пути с трех сторон.Екатерина Д.Добавьте...
    • 2/2 эт.
    300 000 Р
    Агент
    +7 (917) Показать номер
    Посмотреть контакты
    всего 6 этажей

    АРЕНДА ОТ 11 МЕС. Бизнес-центр класса B+. Сдаётся помещение свободной планировки в цокольном этаже площадью 157 кв.м. Стандартная отделка. Вентиляция. Есть охрана.НДС и эксплуатационные расходы включены. Лот № 241807. С риелторами не сотрудничаем
    • 6 этажей
    287 833 Р
    Агент
    +7 (985) Показать номер
    Посмотреть контакты
    3-й этаж, всего 23 этажа

    БЕЗ КОМИССИИ БЦ класса B+ NEO GEO . Сдаётся под офис блок на 3-м этаже площадью 85 кв.м. Стандартная офисная отделка.НДС включен. Улица Бутлерова, 17, 10 минут пешком от метро Калужская. ЛОТ 231588
    • 3/23 эт.
    286 698 Р
    Агент
    +7 (939) Показать номер
    Посмотреть контакты
    2-й этаж, всего 4 этажа

    Сдается помещение в аренду под офис в ТРЦ с отделкой. ТРЦ ИЮНЬ — это крупнейший мультиформатный торгово-развлекательный центр в городе Мытищи, сочетающий в себе торговые галереи, фудкорт, кинотеатр, а также современные площадки для творчества, образования...
    • 2/4 эт.
    300 000 Р
    Агент
    +7 (985) Показать номер
    Посмотреть контакты

    Не нашли подходящего объявления?

    Оставьте заявку, и наши риэлторы подберут офис в районе Саратова

    (0)