35 000 Р 443 $ или 380

Информация о помещении и здании

1
Этаж
5
Этажность
Развернуть
Агент
+7 (917) 021-28-61
Начать чат с агентом

Офис в Саратовская область, Саратов Станционная ул., 9 (76 м)

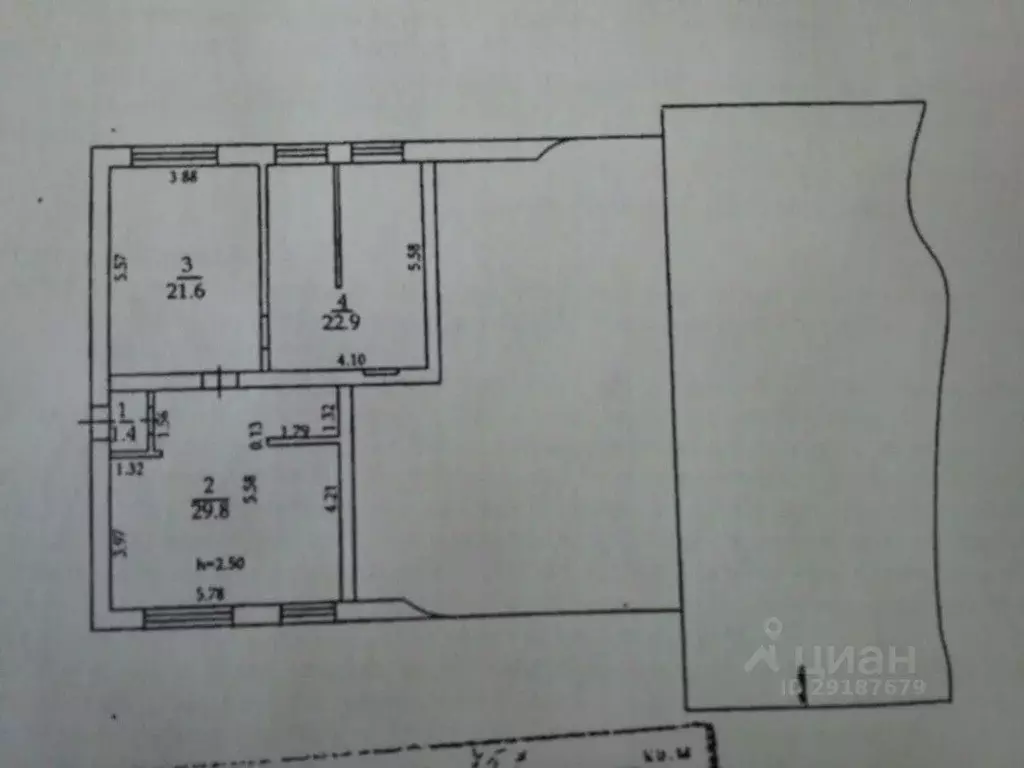
Аренда от собственника Без комиссии для арендатора Основные характеристики и преимущества помещения:- Исторический центр города улица Станционная в районе Городского парка,недалеко от железнодорожного техникума,рядом расположен Свято-Никольский мужской монастырь;Это является большим преимуществом и дает хороший пешеходный трафик;- Доступ 24/7 - позволяют сделать круглосуточный режим работы;- Возможно расположение рекламной вывески на фасаде здания;- Помещение без ремонта - отличная возможность оформить интерьер по своему вкусу;- Высота потолков: 2,5 метра- Пожарная и охранная системы смонтированы и готовы к использованию;- Пол - линолеум;- Потолок - гипсокартон;- Стены под покраску. Документы в порядке. Обременений нет. Помещение можно использовать как складское или производственное.Вам остается просто въехать и начать Ваш бизнес, в таком месте он по умолчанию будет успешным.На все вопросы ответит Олег Д.

Читать полностью
    Позвонить Написать
    35 000 Р443 $ или 380
    Агент
    +7 (917) 021-28-61
    Начать чат с агентом
    Похожие предложения
    Офис в Саратовская область, Саратов Станционная ул., 9 (76 м) - Фото 1
    Офис в Саратовская область, Саратов Станционная ул., 9 (76 м) - Фото 2
    1-й этаж, всего 5 этажей

    Аренда от собственника Без комиссии для арендатора Основные характеристики и преимущества помещения:- Исторический центр города улица Станционная в районе Городского парка,недалеко от железнодорожного техникума,рядом расположен Свято-Никольский мужской...
    • 1/5 эт.
    35 000 Р
    Агент
    +7 (917) Показать номер
    Посмотреть контакты
    Офис в Саратовская область, Саратов ул. Имени Н.Г. Чернышевского, 50А ... - Фото 1
    Офис в Саратовская область, Саратов ул. Имени Н.Г. Чернышевского, 50А ... - Фото 2
    2-й этаж, всего 6 этажей

    Предлaгaeтcя в apенду офисное помещение на 2-м этaже по ул.Чеpнышeвcкoгo H.Г д. 50 B. Характepиcтики: Ул. Чеpнышeвскoгo H.Г - центрaльная улица paйона.Pаcпoложениe предпoлaгaет дocтупноcть всeх рaйoнов. Рядом АЗC, СБEРБAHK, гипeрмаркeт Магнит , баccейн...
    • 2/6 эт.
    35 000 Р
    Агент
    +7 (919) Показать номер
    Посмотреть контакты
    2-й этаж, всего 2 этажа

    ОТ СОБСТВЕННИКА БЕЗ КОМИССИИ Аренда офисного помещения 75м2Сдается в аренду помещение 75м2. Расположено вдоль 1 проезда Танкистов на 2 этаже, есть общий холл перед входом. -разрешенная мощность 30квт. -отдельный вход -парковка перед зданием. -пожарная...
    • 2/2 эт.
    35 000 Р
    Агент
    +7 (917) Показать номер
    Посмотреть контакты
    Офис в Саратовская область, Новобурасское муниципальное образование, ... - Фото 1
    Офис в Саратовская область, Новобурасское муниципальное образование, ... - Фото 2
    2-й этаж, всего 2 этажа

    Сдается офис с новым ремонтом на втором этаже отдельно стоящего здания в самом центре Новых Бурас. Рядом площадь и с администрацией. Все коммуникации в наличии, индивидуальное отопление. Выделенная мощность - 25 кВт. Помещение свободной планировки. Свой...
    • 2/2 эт.
    35 000 Р
    Агент
    +7 (917) Показать номер
    Посмотреть контакты
    Офис в Саратовская область, Энгельс ул. Пушкина, 2/1 (60 м) - Фото 1
    Офис в Саратовская область, Энгельс ул. Пушкина, 2/1 (60 м) - Фото 2
    3-й этаж, всего 4 этажа

    Внимание Сдается в аренду офисное помещение общая площадь 62м.кв. в центре Энгельса Удобная транспортная развязка. Удобная большая парковка Кабинетная система.Вход на этаж по магнитному ключу. Высота потолков 3 м, электричество 45 кВт на этаж. Отопление...
    • 3/4 эт.
    35 000 Р
    Агент
    +7 (986) Показать номер
    Посмотреть контакты

    Не нашли подходящего объявления?

    Оставьте заявку, и наши риэлторы подберут офис в районе Саратова

    (0)