28 000 000 Р 368 000 $ или 315 700

Информация об помещении

1
Этаж

Состояние и оснащение

Количество этажей
4
Развернуть
Агент
+7 (987) 330-23-18
Начать чат с агентом

Помещение свободного назначения в Саратовская область, Саратов ул. ...

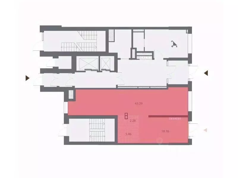
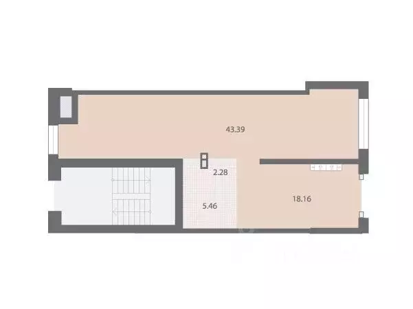
Продаю помещение, оборудованное под ресторан. Помещение в отличном состоянии со всей необходимой мебелью, техникой и оборудованием. Состоит из основного зала, малого зала с барной стойкой, кухни, подсобных помещений. Ранее располагался ресторан Одесса, идеальный ремонт , дизайнерская итальянская мебель, высококачественное кухонное оборудование в идеальном состоянии, удобные подсобные помещения, два отдельных входа с улицы (парадный и служебный)Высокий автомобильный и пешеходный трафикПомещение располагается на первом этаже жилого дома в самом центре города, рядом парк Липки, пешеходная зона ул. Волжской.Помещение полностью готово к использованию, дополнительных вложений не требует. Один взрослый собственник, к продаже документы готовы

Читать полностью
    Позвонить Написать
    28 000 000 Р368 000 $ или 315 700
    Агент
    +7 (987) 330-23-18
    Начать чат с агентом
    Похожие предложения
    Помещение свободного назначения в Саратовская область, Саратов ... - Фото 1
    Помещение свободного назначения в Саратовская область, Саратов ... - Фото 2
    Здание расположено в историческом центре Саратова на первой линии ул.Советская (рядом с перекрестком с ул.Чапаева)Здание 1959 года постройки, состоит из 2-х этажей. Все коммуникации подключены (газовое отопление индивидуальное, свет, вода).Здание требует...
    • 1/2 эт.
    29 000 000 Р
    Агент
    +7 (917) Показать номер
    Посмотреть контакты
    Помещение свободного назначения в Саратовская область, Саратов ул. ... - Фото 1
    Помещение свободного назначения в Саратовская область, Саратов ул. ... - Фото 2
    продается комплекс комерческой недвижимости состоящий из хостела работающего из 15 номеров и 3 випа , хостел с косметическим ремонтом офисного здания с лицевой стороны , которое можно переоборудовать под любое помещение 2 бокса которые сдаются под сто...
    • 2/2 эт.
    28 000 000 Р
    Агент
    +7 (987) Показать номер
    Посмотреть контакты
    Помещение свободного назначения в Саратовская область, Саратов пос. ... - Фото 1
    Помещение свободного назначения в Саратовская область, Саратов пос. ... - Фото 2
    Продается капитальное отдельностоящее ЗДАНИЕ общей площадью 437,5 м на участке 3260 м2 (в собственности).ОБЪЕКТ подходит под ведение различных видов бизнеса:- развлечение (баня, сауна, бассейн, бильярд и т.д.)- швейный, перкарный цех, производство- гостииница,...
    • 2/2 эт.
    28 000 000 Р
    Агент
    +7 (987) Показать номер
    Посмотреть контакты
    Помещение свободного назначения в Санкт-Петербург № 54 муниципальный ... - Фото 1
    Помещение свободного назначения в Санкт-Петербург № 54 муниципальный ... - Фото 2
    Продаётся помещение свободного назначения площадью 65.72 кв. м. в новостройке ЖК Цивилизация на Неве по адресу Санкт-Петербург, Невский, Октябрьская набережная, д. 40. Окна с видом на улицу. Высота потолков 3.59 м. Отдельный вход с улицы. Стоимость...
    • 1/23 эт.
    27 784 530 Р
    Агент
    +7 (911) Показать номер
    Посмотреть контакты
    Помещение свободного назначения в Санкт-Петербург № 54 муниципальный ... - Фото 1
    Помещение свободного назначения в Санкт-Петербург № 54 муниципальный ... - Фото 2
    Продаётся помещение свободного назначения площадью 69.32 кв. м. в новостройке ЖК Цивилизация на Неве по адресу Санкт-Петербург, Невский, Октябрьская набережная, д. 40. Окна с видом во двор и на улицу. Высота потолков 3.59 м. Отдельный вход с улицы....
    • 1/23 эт.
    28 582 125 Р
    Агент
    +7 (911) Показать номер
    Посмотреть контакты

    Не нашли подходящего объявления?

    Оставьте заявку, и наши риэлторы подберут псн в районе Саратова

    (0)