Реализация объекта недвижимости приостановлена

Развернуть

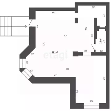
Офис, 108

Продаю офисное помещение в самом центре города Саратов, расположенное в историческом здании (ансамбль верхнего рынка). Отличное место для работы. В шаговой доступности магазины, банки, садики, школы, остановки общественного транспорта. Помещение полностью отремонтировано и обставлено мебелью. Состоит из двух комнат, имеет два отдельных входа/выхода на улицу Мясницкую и во двор на личную парковку. В помещении проведены тёплые полы. Горячая и холодная вода и канализация. Все коммуникации городские, все договора заключены.

Читать полностью

    Реализация объекта недвижимости приостановлена

    Не нашли подходящего объявления?

    Оставьте заявку, и наши риэлторы подберут офис в районе Саратова

    (0)