2 500 000 Р 29 760 $ или 25 700

Информация о квартире

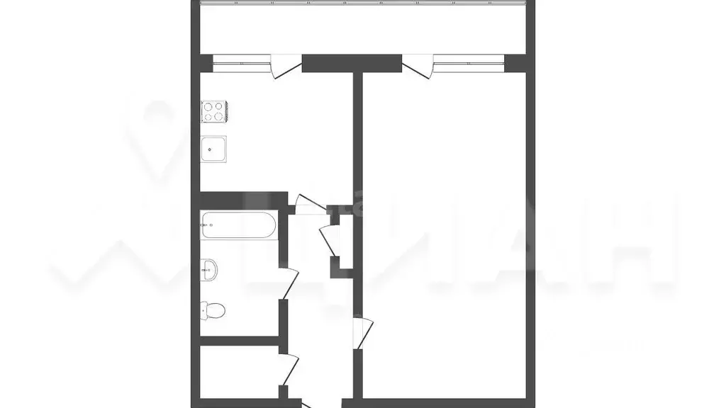
42 м2
Площадь
6 м2
Кухня
2
Комнаты
1
Этаж
3
Этажность

Дополнительная информация

Тип дома
кирпичный
Развернуть
Агент
+7 (987) 311-16-12
Начать чат с агентом

2-к кв. Саратовская область, Маркс 5-я линия (42.5 м)

Продается уютная двухкомнатная квартира в тихом районе города Маркс. Общая площадь — 42.5 кв. м, расположена на первом этаже двухэтажного кирпичного дома. Прекрасный вариант для семей с детьми или пожилых людей. В квартире выполнен косметический ремонт, что позволяет вам сразу заехать и жить. Светлая кухня площадью 6 кв. м станет отличным местом для семейных обедов. Санузел совмещенный, что удобно для экономии пространства. Планировка квартиры функциональна и удобна для комфортного проживания.Дом имеет наземную парковку, поэтому у вас всегда будет место для вашего автомобиля. Рядом с домом гараж и сарай.В шаговой доступности находятся клиники и магазины. Близость к транспортным развязкам позволяет быстро добраться до центра города.Продажа квартиры осуществляется по прямому договору купли-продажи. Возможна ипотека, все документы готовы к сделке, без обременений. Мы будем рады ответить на ваши вопросы и показать вам ваше будущее жилье. Цена.

Читать полностью

    Для того, чтобы купить двухкомнатную квартиру по адресу: Маркс, 5-я линия, позвоните по телефону +7 (987) 311-16-12. Торопитесь! Объявление №30094107041 о продаже двухкомнатной квартиры опубликовано 09 марта 2026.

    Позвонить Написать
    2 500 000 Р29 760 $ или 25 700
    Агент
    +7 (987) 311-16-12
    Начать чат с агентом
    Похожие предложения
    2-к кв. Саратовская область, Маркс просп. Строителей, 7 (46.0 м) - Фото 1
    2-к кв. Саратовская область, Маркс просп. Строителей, 7 (46.0 м) - Фото 2
    2-комнатная квартира, общая площадь 46м², жилая 33м², кухня 8м²

    Арт.. В продаже двух комнатная квартира на комфортном втором этаже Очень удобная планировка, комнаты изолированные Сан/узел совмещенный, балкон застекленный По документам- один взрослый собственник, быстрый выход на сделку
    • 46 м²
    • 2-ком
    • 2/5 эт.
    • панельный
    2 600 000 Р
    Агент
    +7 (987) Показать номер
    Посмотреть контакты
    3-к кв. Саратовская область, Маркс просп. Строителей (59.0 м) - Фото 1
    3-к кв. Саратовская область, Маркс просп. Строителей (59.0 м) - Фото 2
    3-комнатная квартира, общая площадь 59м², кухня 6м²

    Продается уютная трехкомнатная квартира, расположенном на втором этаже пятиэтажного здания. Общая площадь квартиры составляет 59 кв. м, а кухня занимает 6 кв. м. Окна выходят как на тихую улицу, так и во двор, обеспечивая естественное освещение.Удобная...
    • 59 м²
    • 3-ком
    • 2/5 эт.
    • панельный
    2 500 000 Р
    Агент
    +7 (987) Показать номер
    Посмотреть контакты
    1-к кв. Саратовская область, Энгельс просп. Фридриха Энгельса, 20 ... - Фото 1
    1-к кв. Саратовская область, Энгельс просп. Фридриха Энгельса, 20 ... - Фото 2
    1-комнатная квартира, общая площадь 35м², жилая 18м², кухня 7м²

    Продается уютная однокомнатная квартира Энгельса. Общая площадь — 35 кв. м, жилая — 18 кв. м, кухня — 7 кв. м. Квартира расположена на 2 этаже 5-этажного панельного дома, построенного в 1992 году. Высота потолков составляет 2.7 метра, что добавляет простора....
    • 35 м²
    • 1-ком
    • 2/5 эт.
    • панельный
    2 600 000 Р
    Агент
    +7 (987) Показать номер
    Посмотреть контакты
    2-к кв. Саратовская область, Энгельс Степная ул., 175 (42.6 м) - Фото 1
    2-к кв. Саратовская область, Энгельс Степная ул., 175 (42.6 м) - Фото 2
    2-комнатная квартира, общая площадь 42м², кухня 8м²

    Продается двухкомнатная квартира в районе 1-й школы. г Энгельса. Это идеальное предложение для тех, кто ищет жилье для инвестиций или готов вложить душу в создание своего идеального гнездышка.Что вы получаете?Удобная планировка: Изолированные комнаты...
    • 42 м²
    • 2-ком
    • 1/5 эт.
    2 600 000 Р
    Агент
    +7 (917) Показать номер
    Посмотреть контакты
    2-к кв. Саратовская область, Татищевский район, Вязовское ... - Фото 1
    2-к кв. Саратовская область, Татищевский район, Вязовское ... - Фото 2
    2-комнатная квартира, общая площадь 41м², жилая 22м², кухня 9м²

    Продаю очень уютную и теплую 2-х комнатную квартиру, расположенную на первом этаже, 2-х этажного , кирпичного дома. Две жилые комнаты: гостинная с выходом на лоджию и спальня. Они смежные, но при желании есть возможность их сделать изолированными. Просторная...
    • 41 м²
    • 2-ком
    • 1/2 эт.
    2 480 000 Р
    Агент
    +7 (917) Показать номер
    Посмотреть контакты

    Не нашли подходящего объявления?

    Оставьте заявку, и наши риэлторы подберут квартиру в районе Маркса

    (0)