2 322 000 Р 27 640 $ или 23 870

Информация о квартире

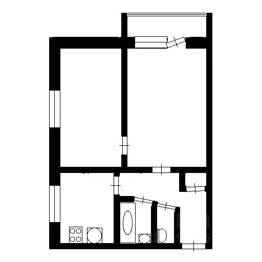
59 м2
Площадь
43 м2
Жилая
8 м2
Кухня
3
Комнаты
1
Этаж
5
Этажность

Дополнительная информация

Тип дома
кирпичный
Развернуть
Агент
+7 (984) 239-47-85
Начать чат с агентом

3-к кв. Саратовская область, Маркс просп. Строителей, 26 (59.0 м)

Электронные торги имуществом ПАО Татфондбанк открытый повторный аукцион. Реализуется 3-комнатная квартира на 1 эт./ 5, кадастровый номер 64:44:090102:713. Ограничения и обременения: зарегистрированы и проживают 4 человека, в том числе 1 несовершеннолетний, ведется судебная работа по выселению, наличие перепланировки/переустройства/реконструкции установить невозможно. Доступ к осмотру квартиры затруднен.Торги проходят на эл. площадке АГЗРТ (Татарстан).Прием заявок на участие в повторном Аукционе : 26.02.2026 00:00Дата окончания представления заявок на участие: 03.04.2026 14:00Дата проведения повторного аукциона: 08.04.2026 14:00

Читать полностью

    Для того, чтобы купить трехкомнатную квартиру по адресу: Маркс, Строителей пр-кт., 26, позвоните по телефону +7 (984) 239-47-85. Торопитесь! Объявление №30093861002 о продаже трехкомнатной квартиры опубликовано Вчера.

    Позвонить Написать
    2 322 000 Р27 640 $ или 23 870
    Агент
    +7 (984) 239-47-85
    Начать чат с агентом
    Похожие предложения
    2-к кв. Саратовская область, Энгельсский район, Новопушкинское ... - Фото 1
    2-к кв. Саратовская область, Энгельсский район, Новопушкинское ... - Фото 2
    2-комнатная квартира, общая площадь 50м², кухня 9м²

    Срочно продаю 2 к кв п ПробуждениеИзолированные комнатыСупер планировка на 2 стороны Пластиковые окна, лоджия застеклена Супер цена По цене однокомнатной квартиры Под ремонт Рядом школа, дет садик, все сети магазинов Квартира на ключах Показ...
    • 50 м²
    • 2-ком
    • 1/3 эт.
    • панельный
    2 300 000 Р
    Агент
    +7 (987) Показать номер
    Посмотреть контакты
    1-к кв. Саратовская область, Энгельс муниципальное образование, ... - Фото 1
    1-к кв. Саратовская область, Энгельс муниципальное образование, ... - Фото 2
    1-комнатная квартира, общая площадь 29м², жилая 17м², кухня 6м²

    Продается уютная однокомнатная квартира 29.9 кв. метров, расположена на комфортном 3 этаже пятиэтажного кирпичного дома. В квартире выполнен косметический ремонт, установлены пластиковые окна, натяжные потолки, новые радиаторы. Мебель остается по договоренности....
    • 29 м²
    • 1-ком
    • 3/5 эт.
    • кирпичный
    2 280 000 Р
    Агент
    +7 (917) Показать номер
    Посмотреть контакты
    2-к кв. Саратовская область, Энгельс ул. Ломоносова, 13 (45.5 м) - Фото 1
    2-к кв. Саратовская область, Энгельс ул. Ломоносова, 13 (45.5 м) - Фото 2
    2-комнатная квартира, общая площадь 45м², кухня 6м²

    Продаётся квартира по адресу: улица Ломоносова 13 в Энгельсе. Домасположен в очень уютном районе . В шаговой доступности продуктовые магазины, школа 5 и 9, остановки транспорта, детские сады. Квартира теплая и уютная, удобная планировка, комнаты ....
    • 45 м²
    • 2-ком
    • 1/5 эт.
    2 350 000 Р
    Агент
    +7 (917) Показать номер
    Посмотреть контакты
    2-к кв. Саратовская область, Балашов Привокзальная ул., 10 (47.6 м) - Фото 1
    2-к кв. Саратовская область, Балашов Привокзальная ул., 10 (47.6 м) - Фото 2
    2-комнатная квартира, общая площадь 47м², жилая 27м², кухня 7м²

    Продается двухкомнатная квартира площадью 47,6 кв.метров, на третьем этаже трёхэтажного кирпичного дома в районе Автовокзала — готовое решение для тех, кто желает сделать квартиру по своему вкусу и потребностям. Высокие потолки в комнатах, большие окна....
    • 47 м²
    • 2-ком
    • 3/3 эт.
    • кирпичный
    2 200 000 Р
    Агент
    +7 (917) Показать номер
    Посмотреть контакты
    2-к кв. Саратовская область, Балаково ул. Титова, 23 (38.0 м) - Фото 1
    2-к кв. Саратовская область, Балаково ул. Титова, 23 (38.0 м) - Фото 2
    2-комнатная квартира, общая площадь 38м², жилая 28м², кухня 5м²

    Продается 2-комнатная квартира на 2 этаже.Квартира без ремонта — отличная возможность создать интерьер по своему вкусу. Уже выполнены важные работы: заменены батареи и трубы водоснабжения, что обеспечит комфорт и надежность на долгие годы.Приятный бонус...
    • 38 м²
    • 2-ком
    • 2/4 эт.
    • кирпичный
    2 400 000 Р
    Агент
    +7 (987) Показать номер
    Посмотреть контакты

    Не нашли подходящего объявления?

    Оставьте заявку, и наши риэлторы подберут квартиру в районе Маркса

    (0)