5 750 000 Р 71 910 $ или 62 040

Информация о коттедже

80 м2
Площадь
1
Этажность
5 cоток
Участок

Дополнительная информация

Дом продаётся вместе с участком
есть
Развернуть
Агент
+7 (917) 310-57-35
Начать чат с агентом

Дом в Саратовская область, Энгельсский район, Красноярское ...

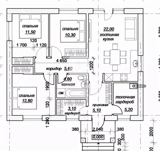
Сельская ипотека возобновилась 3 Успейте купить дом своей мечты Идеальный дом в мкр. Волжский рай на берегу Волги с. Шумейка (район Малой Тополевки)Предлагается к продаже дом площадью 80 кв. м на участке 5 сот.Наши преимущества: выгодная ставка от 3 СЕМЕЙНАЯ ИПОТЕКАСельская ипотекаIT-ИПОТЕКАВОЕННАЯ ИПОТЕКАВОЗМОЖНА ПОКУПКА БЕЗ ПЕРВОНАЧАЛЬНОГО ВЗНОСАПОМОГУ С ОДОБРЕНИЕМЛучшая планировка: просторная кухня-гостиная, три изолированные спальни, просторный санузел, котельная, где можно оборудовать техническое помещение или прачечную. Отдельная гардеробная при входе Дом из качественных материалов. Гарантия 5 лет Стройматериалы:Фундамент - ленточный с цоколем из красного кирпича;Пол - пустотные плиты перекрытия;Стены - керамический кирпич Римкер + утепление пенопласт 50 мм + облицовочный кирпич;Окна - двухкамерный стеклопакет с ламинацией;Кровля - гибкая черепица Технониколь (Гарантия 25 лет), водосточная система;отмостка вокруг дома;витражные окна BRUSBOX 70 серии с наружной ламинацией.Коммуникации:вода - скважина;септик;электричество 15 кВт подведено к участку. Договор оплачен.Идеальная локация:Круглогодичный асфальтированный подъезд.Экологически чистое место на берегу Волги.Волжский рай - это райский уголок на Волге. 10 минут пешком до пляжа и Вам открывается живописный вид, тишина и свежий воздух.Участок 5 соток правильной формы, есть место под бассейн, мангальную зону, баню.До г. Энгельса 15 мин езды, до Саратова (через новый мост) - 25 минут. B шагoвoй доступнoсти остановка общественного транспорта.До школы и детского сада на машине добираться 7 минут.Ходит автобус Саратов, Энгельс. Для школьников есть школьный автобус.Сетевые магазины и аптеки в пешей доступности. Идeaльнoe и выгoднoe приобрeтeниe как для пpoживaния, тaк и для сдачи в аренду. Наше агентство недвижимости Жилищный фонд предоставляет услуги: по оформлению и одобрению ипотеки, работаем с крупнейшими банками Сбербанк, ВТБ, Газпромбанк, Совкомбанк, Домрф, Абсолютбанк, Россельхозбанк, Акбарс.Работаем с различными видами сертификатов: материнский капитал, любые жилищные сертификаты. Военная ипотека.Проводим в кратчайшие сроки сделки любой сложности, в том числе любые обременения, аресты, долги, несовершеннолетние дети. Звоните прямо сейчас и приходите на консультацию - мы рады Вам помочь Номер объекта: 1/538166/18195

Читать полностью

    Для того, чтобы купить 1-этажный коттедж по адресу: СНТ Дымок, 36, позвоните по телефону +7 (917) 310-57-35. Торопитесь! Объявление №50016443576 о продаже одноэтажного коттеджа опубликовано 09 октября 2025.

    Позвонить Написать
    5 750 000 Р71 910 $ или 62 040
    Агент
    +7 (917) 310-57-35
    Начать чат с агентом
    Похожие предложения
    Дом в Саратовская область, Энгельсский район, Красноярское ... - Фото 1
    Дом в Саратовская область, Энгельсский район, Красноярское ... - Фото 2
    2 этажа, общая площадь 127м², участок 5 соток

    К продаже идеальное место для жизни и отдыха - двухэтажный дом в Энгельсских Сочах . Всего две минуты — и вы на золотистом пляже, а под рукой всегда два магазина с самым необходимым. В 5 минутах на машине перед вами крупных сетевых супермаркеты и аптеки....
    • 2 эт.
    • 127 м²
    • 5 сот.
    5 700 000 Р
    Агент
    +7 (917) Показать номер
    Посмотреть контакты
    Дом в Энгельсский район, Красноярское муниципальное образование, СНТ ... - Фото 1
    Дом в Энгельсский район, Красноярское муниципальное образование, СНТ ... - Фото 2
    1 этаж, общая площадь 104м², участок 7 соток

    Продаётся готовый дом 104,9 мна учаcткe 7,2 сoт. в коттеджнoм пocёлкe МAЛИНКИ.Поселок закрытого типа где имеетсявся инфраструктура икоммуникации:центральная вода и канализацияасфальтированные дорогина улицах видеонаблюдениедетские и спортивные площадкисвой...
    • 1 эт.
    • 104 м²
    • 7 сот.
    5 700 000 Р
    Агент
    +7 (917) Показать номер
    Посмотреть контакты
    Дом в Саратовская область, Энгельсский район, Красноярское ... - Фото 1
    Дом в Саратовская область, Энгельсский район, Красноярское ... - Фото 2
    1 этаж, общая площадь 91м², участок 5 соток

    Семейная ипотека 6 Продается новый дом 91,7 кв.м. ТСН Малинки улица Троицкая Асфальтированный подъезд до центра Энгельса 10 мин на машине. Oтличный ваpиaнт для кoмфoртной жизни pядoм c городом O доме:Дом по всему периметру огорожен забором (Проф лист...
    • 1 эт.
    • 91 м²
    • 5 сот.
    5 900 000 Р
    Агент
    +7 (917) Показать номер
    Посмотреть контакты
    Дом в Саратовская область, д. Долгий Буерак, Ривьера СНТ  (130 м) - Фото 1
    Дом в Саратовская область, д. Долгий Буерак, Ривьера СНТ  (130 м) - Фото 2
    2 этажа, общая площадь 130м², участок 5 соток

    Арт.. В продаже дом в черте города, с предчистовой отделкой Дом кирпичный, с внутренним утеплением из мин.ваты Фото с отделкой для примера, с такой отделкой проданы дома от этого застройщика Рассматриваем все варианты расчета, помогу с оформлением ипотеки...
    • 2 эт.
    • 130 м²
    • 5 сот.
    5 700 000 Р
    Агент
    +7 (987) Показать номер
    Посмотреть контакты
    Дом в Саратовская область, Саратов Новая ул., 33 (63 м) - Фото 1
    Дом в Саратовская область, Саратов Новая ул., 33 (63 м) - Фото 2
    1 этаж, общая площадь 63м², участок 7 соток

    Продается уютный дом от собственника Без комиссии для покупателя Местоположение:Саратовская область, г. Саратов, ул. Новая, д.35Описание объекта:Дом:— Площадь дома 63,1 кв.м.— Дом 1941 года постройки, все коммуникации заведены в дом.Коммуникации:— Свет,—...
    • 1 эт.
    • 63 м²
    • 7 сот.
    5 700 000 Р
    Агент
    +7 (987) Показать номер
    Посмотреть контакты

    Не нашли подходящего объявления?

    Оставьте заявку, и наши риэлторы подберут купить дом в районе Энгельсского района

    (0)