100 000 Р 1 260 $ или 1 090

Информация об помещении

1
Этаж

Состояние и оснащение

Количество этажей
10
Развернуть
Агент
+7 (986) 985-84-87
Начать чат с агентом

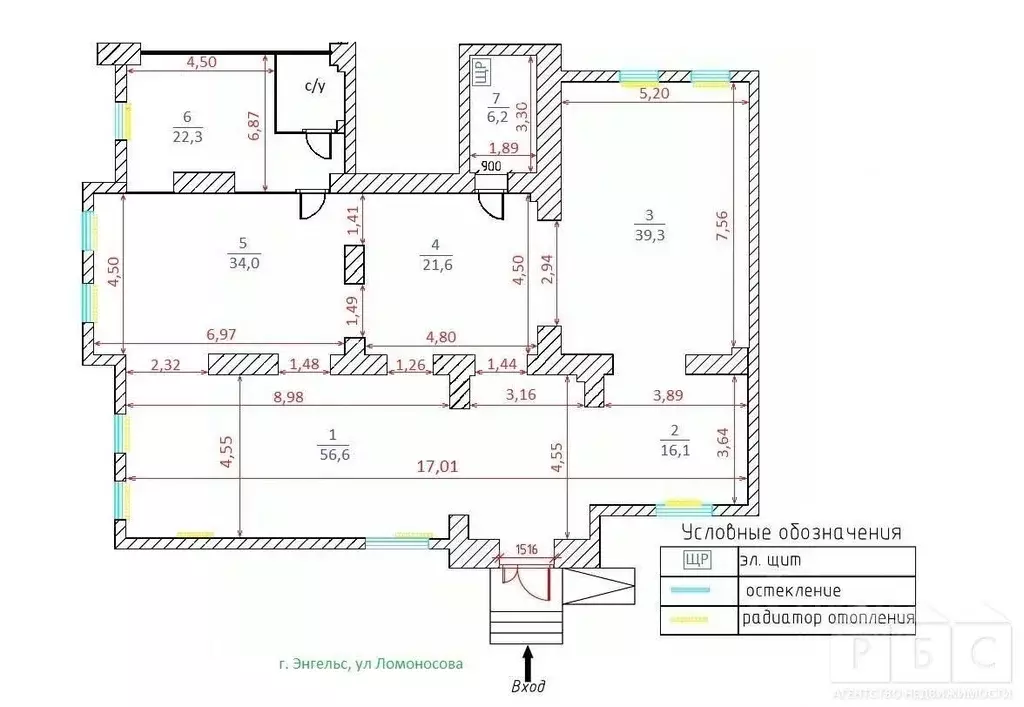
Помещение свободного назначения (175 м)

От собственника Без комиссии Характеристики:- 1 линия- Отдельная входная группа- Общая парковка- Доступ 24/7- ХВС/ГВС- Свой санузел- Центральное отопление- Есть кондиционер- Хороший ремонт- Открытая планировка- Жилой дом- С окнамиДополнительная информация:Сдаётся в аренду помещение свободного назначения 175 кв.м. Под магазин, склад, аптеку, пункты выдачи заказов OZON/WB/Яндекс Маркет, мастерскую. - Удобная транспортная доступность.- Парковка для грузового и легкового транспорта. -Свет, вода, отопление.По всем вопросам можете обращаться к представителю собственника: Андрей Н.

Читать полностью
    Позвонить Написать
    100 000 Р1 260 $ или 1 090
    Агент
    +7 (986) 985-84-87
    Начать чат с агентом
    Похожие предложения
    Помещение свободного назначения в Саратовская область, Энгельс просп. ... - Фото 1
    Помещение свободного назначения в Саратовская область, Энгельс просп. ... - Фото 2
    От собственника Без комиссии Характеристики:- 1 линия- Отдельная входная группа- Общая парковка- Есть возможность разместить вывеску- Погрузка/разгрузка: Главный вход- Доступ 24/7- ХВС/ГВС- Свой санузел- Центральное отопление- Приточно-вытяжная вентиляция-...
    • 1/10 эт.
    90 000 Р
    Агент
    +7 (917) Показать номер
    Посмотреть контакты
    Помещение свободного назначения в Саратовская область, Энгельс ул. ... - Фото 1
    Помещение свободного назначения в Саратовская область, Энгельс ул. ... - Фото 2
    Универсальное торгово-офисное отдельно стоящее двух этажное здание коммерческого назначения, район Мелиорации. Высокий автомобильный и пешеходный трафик. Высота потолков 3 метра, выделенная электрическая мощность 28 кВт, все коммуникации в наличии. В...
    • 1/2 эт.
    96 200 Р
    Агент
    +7 (917) Показать номер
    Посмотреть контакты
    Помещение свободного назначения в Саратовская область, Энгельс ул. ... - Фото 1
    Помещение свободного назначения в Саратовская область, Энгельс ул. ... - Фото 2
    id:11788. Сдаётся торговая площадь в центре Энгельса. Расположение: г. Энгельс, ул. Максима Горького, 7,Описание :• Общая площадь 136,2 м.• Центральный отдельный вход • Водоснабжение и канализация централизованное• ...
    • 1/2 эт.
    110 000 Р
    Агент
    +7 (917) Показать номер
    Посмотреть контакты
    Помещение свободного назначения в Саратовская область, Энгельс ул. ... - Фото 1
    Помещение свободного назначения в Саратовская область, Энгельс ул. ... - Фото 2
    id:12372. Коммерческое помещение 198 м на первой линии в развитом микрорайоне Адрес: г. Энгельс, ул. Ломоносова, 28 - микрорайон Химиков с плотной жилой застройкой и сформированной инфраструктурой.Дом современный, 10-этажный (2009 г.), рядом остановка...
    • 1/10 эт.
    100 000 Р
    Агент
    +7 (917) Показать номер
    Посмотреть контакты
    Помещение свободного назначения в Саратовская область, Энгельс ул. ... - Фото 1
    Помещение свободного назначения в Саратовская область, Энгельс ул. ... - Фото 2
    Сдается 1й этаж в 2 этажном здании. При необходимости можно увеличить площадь и арендовать дополнительно 2й этаж. Возможное использование под розничную торговлю, офис, спортивный зал. Автономное отопление, кондиционеры, эл. мощность 29 кВт, с возможностью...
    • 1/2 эт.
    94 000 Р
    Агент
    +7 (987) Показать номер
    Посмотреть контакты

    Не нашли подходящего объявления?

    Оставьте заявку, и наши риэлторы подберут псн в районе Энгельса

    (0)