3 100 000 Р 40 270 $ или 34 170

Информация о квартире

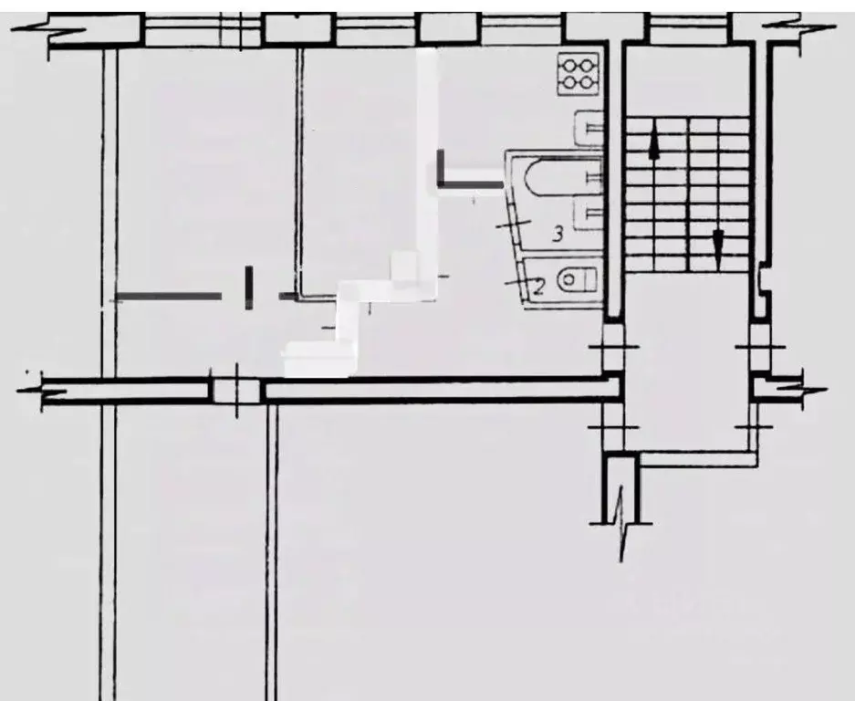
41 м2
Площадь
6 м2
Кухня
3
Комнаты
5
Этаж
5
Этажность
Развернуть
Агент
+7 (917) 210-91-93
Начать чат с агентом

3-к кв. Саратовская область, Энгельс ул. Ломоносова, 8 (41.8 м)

Продаётся отличная, уютная 3-к.квартира общей площадью 41.8 м с кухней 6 м на 5 этаже 5-этажного дома с окнами на улицу. Дом кирпичный 1967 года постройки расположен в спальном районе. В шаговой доступности продуктовые магазины, аптеки, остановки общественного транспорта(в любую точку города и Саратов),средняя образовательные школы и детские сады. Квартира теплая и уютная, удобная планировка, комнаты смежные, изолированные. Высота потолков 2.65 м. Санузел в квартире совмещенный, есть балкон(застеклён пластиком), установлены счётчики на все приборы учёта. Состояние квартиры хорошее, сделан косметический ремонт-заходи и живи Есть сплитсистема, мебель в комнатах остаётся по договорённости. Во дворе детская площадка, очень хорошие соседи.Документы все в порядке. Квартира подходит под любой вид расчёта Звоните, пишите и договоримся о показе

Читать полностью

    Для того, чтобы купить трехкомнатную квартиру по адресу: Энгельс, ул. Ломоносова, 8, позвоните по телефону +7 (917) 210-91-93. Торопитесь! Объявление №30091338596 о продаже трехкомнатной квартиры опубликовано 31 января 2026.

    Позвонить Написать
    3 100 000 Р40 270 $ или 34 170
    Агент
    +7 (917) 210-91-93
    Начать чат с агентом
    Похожие предложения
    2-комнатная квартира: Энгельс, улица Космонавтов, 1 (41.3 м) - Фото 1
    2-комнатная квартира: Энгельс, улица Космонавтов, 1 (41.3 м) - Фото 2
    2-комнатная квартира, общая площадь 41м², жилая 30м², кухня 6м²

    Предлагаю приобрести 2 к.кв. по адресу ул. Космонавтов д.1. Кирпичный теплый дом, сама квартира расположена на 3-ем этаже из 5. Вся необходимая инфраструктура буквально под рукой, во дворе школа №3, детский сад , все сетевые магазины, остановка общественного...
    • 41 м²
    • 2-ком
    • 3/5 эт.
    3 070 000 Р
    Агент
    +7 (919) Показать номер
    Посмотреть контакты
    3-к кв. Саратовская область, Энгельс пос. Новое Осокорье, ул. ... - Фото 1
    3-к кв. Саратовская область, Энгельс пос. Новое Осокорье, ул. ... - Фото 2
    3-комнатная квартира, общая площадь 57м², кухня 5м²

    ВЫГОДНОЕ предложение УЮТНАЯ 3-к квартира для БОЛЬШОЙ семьи.Общая площадь 57,3 кв.м. + балкон 2,3 кв.м.Квартира расположена на 4 этаже 5-ти этажного дома. Во всех 3х комнатах выполнен качественный косметический ремонт, установлены натяжные потолки, на...
    • 57 м²
    • 3-ком
    • 4/5 эт.
    3 080 000 Р
    Агент
    +7 (987) Показать номер
    Посмотреть контакты
    1-к кв. Саратовская область, Энгельс ул. Тельмана, 19 (31.0 м) - Фото 1
    1-к кв. Саратовская область, Энгельс ул. Тельмана, 19 (31.0 м) - Фото 2
    1-комнатная квартира, общая площадь 31м², кухня 6м²

    Продается уютная однокомнатная квартира с мебелью в центральном районе на ул.Тельмана. Развитая инфраструктура, в шаговой доступности остановки транспорта в любом направлении по Энгельсу и в Саратов. Сады, школы, магазины, аптеки и все необходимое. Помощь...
    • 31 м²
    • 1-ком
    • 2/5 эт.
    • кирпичный
    3 060 000 Р
    Агент
    +7 (917) Показать номер
    Посмотреть контакты
    1-к кв. Саратовская область, Энгельс ул. Менделеева, 15 (33.4 м) - Фото 1
    1-к кв. Саратовская область, Энгельс ул. Менделеева, 15 (33.4 м) - Фото 2
    1-комнатная квартира, общая площадь 33м², жилая 17м², кухня 9м²

    Продается однокомнатная квартира в районе Химиков, ДК Дружбы, 8 квартала. Квартира в кирпичном доме 2016 года постройки. Дом теплый, с утепленным фасадом, есть пандус, грузовой лифт. Квартира не угловая, с большой кухней - 9 кв.м., совмещенным санузлом....
    • 33 м²
    • 1-ком
    • 4/10 эт.
    • кирпичный
    3 150 000 Р
    Агент
    +7 (919) Показать номер
    Посмотреть контакты
    3-к кв. Саратовская область, Энгельс ул. Маршала А.М. Василевского, 21 ... - Фото 1
    3-к кв. Саратовская область, Энгельс ул. Маршала А.М. Василевского, 21 ... - Фото 2
    3-комнатная квартира, общая площадь 57м², жилая 38м², кухня 6м²

    Продается 3-х комнатная квартира, общей площадью 57,8 кв. м, расположенная по адресу: Саратовская область, г. Энгельс, ул. Маршала Василевского, д. 21.Количество комнат: 3Этаж: 5/5Тип дома: кирпичныйГод постройки: 1976 г.Общая площадь: 57,8 кв. мЖилая...
    • 57 м²
    • 3-ком
    • 5/5 эт.
    • кирпичный
    3 003 000 Р
    Агент
    +7 (981) Показать номер
    Посмотреть контакты

    Не нашли подходящего объявления?

    Оставьте заявку, и наши риэлторы подберут квартиру в районе Энгельса

    (0)