25 000 Р 308 $ или 266

Информация об помещении

1
Этаж

Состояние и оснащение

Количество этажей
5
Развернуть
Агент
+7 (987) 360-29-15
Начать чат с агентом

Помещение свободного назначения в Саратовская область, Балаково ул. ...

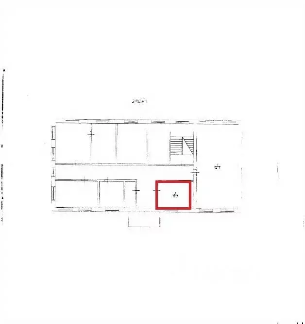
Код объекта: 1891879. Отличный вариант для бизнеса Срочная аренда коммерческого помещения в Балаково по адресу улица Факел Социализма, 19. Помещение свободного назначения площадью 115 кв. м на первом этаже пятиэтажного панельного дома, построенного в 1979 году. В наличии 3 комнаты (2 не больших кабинета и просторное помещение). Есть отдельный вход и вход из подъезда жилого дома, свободный доступ, косметический ремонт — заезжай и начинай работать. Удобное расположение позволит быстро привлечь клиентов. Рядом основные транспортные артерии, лёгкий доступ к центру города. Это помещение — выгодное решение для вашего бизнеса. Не упустите шанс арендовать по выгодной цене Напишите нам, чтобы узнать больше. Мы гарантируем безопасную сделку и юридическую поддержку нашим Клиентам.

Читать полностью
    Позвонить Написать
    25 000 Р308 $ или 266
    Агент
    +7 (987) 360-29-15
    Начать чат с агентом
    Похожие предложения
    Помещение свободного назначения (115 м) - Фото 1
    Помещение свободного назначения (115 м) - Фото 2
    Код объекта: 1891879. Отличный вариант для бизнеса Срочная аренда коммерческого помещения в Балаково по адресу улица Факел Социализма, 19. Помещение свободного назначения площадью 115 кв. м на первом этаже пятиэтажного панельного дома, построенного в...
    • 1/5 эт.
    25 000 Р
    Агент
    +7 (967) Показать номер
    Посмотреть контакты
    Помещение свободного назначения в Саратовская область, Саратов ... - Фото 1
    Помещение свободного назначения в Саратовская область, Саратов ... - Фото 2
    Сдаются нежилые помещения свободного назначения общей площадью 172 кв. м на 1 этаже 4-этажного здания по адресу: г. Саратов, ул. Южно-Зеленая, д. 23а.Возможна аренда различными частями.Обеспечены электроснабжением, водоснабжением и отоплением. Санузел...
    • 1/4 эт.
    25 800 Р
    Агент
    +7 (917) Показать номер
    Посмотреть контакты
    Помещение свободного назначения в Саратовская область, Саратов ... - Фото 1
    Помещение свободного назначения в Саратовская область, Саратов ... - Фото 2
    ПАВИЛЬОН В ТЕХНОПАРКЕВарианты использования:-Общепит (желательно без готовки)-Сфера услуг различного рода-Кофе НЕ ЖЕЛАТЕЛЬНО (рядом уже есть)Павильон подготавливается под конкретные потребности арендатораЛокация внутри IT комплекса рассчитанного наабочих...
    • 1/1 эт.
    25 000 Р
    Агент
    +7 (917) Показать номер
    Посмотреть контакты
    Помещение свободного назначения в Саратовская область, Саратов ... - Фото 1
    Помещение свободного назначения в Саратовская область, Саратов ... - Фото 2
    ПАВИЛЬОН В ТЕХНОПАРКЕВарианты использования:-Общепит (желательно без готовки)-Сфера услуг различного рода-Кофе НЕ ЖЕЛАТЕЛЬНО (рядом уже есть)Павильон подготавливается под конкретные потребности арендатораЛокация внутри IT комплекса рассчитанного наабочих...
    • 1/1 эт.
    25 000 Р
    Агент
    +7 (917) Показать номер
    Посмотреть контакты
    Помещение свободного назначения в Саратовская область, Самойловский ... - Фото 1
    Помещение свободного назначения в Саратовская область, Самойловский ... - Фото 2
    Сдаются помещения свободного назначения общей площадью 51,2 кв. м. На 1 этаже - 17,7 кв. м, на 2 этаже 33,5 кв. м.Отлично под магазин, пункт выдачи и многое другое. Возможно предоставление арендных каникул при необходимости проведения ремонта.Центр посёлка,...
    • 1/2 эт.
    25 600 Р
    Агент
    +7 (917) Показать номер
    Посмотреть контакты

    Не нашли подходящего объявления?

    Оставьте заявку, и наши риэлторы подберут псн в районе Балаково

    (0)